Listing Tools

Listed by Holly Hall of Hall Collins Real Estate Group
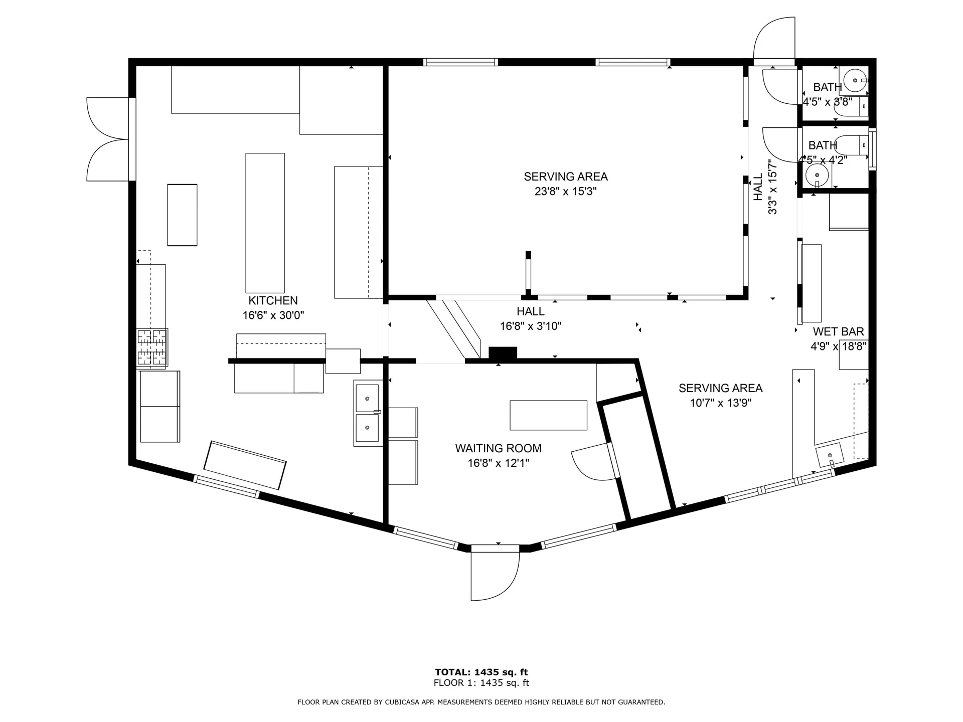
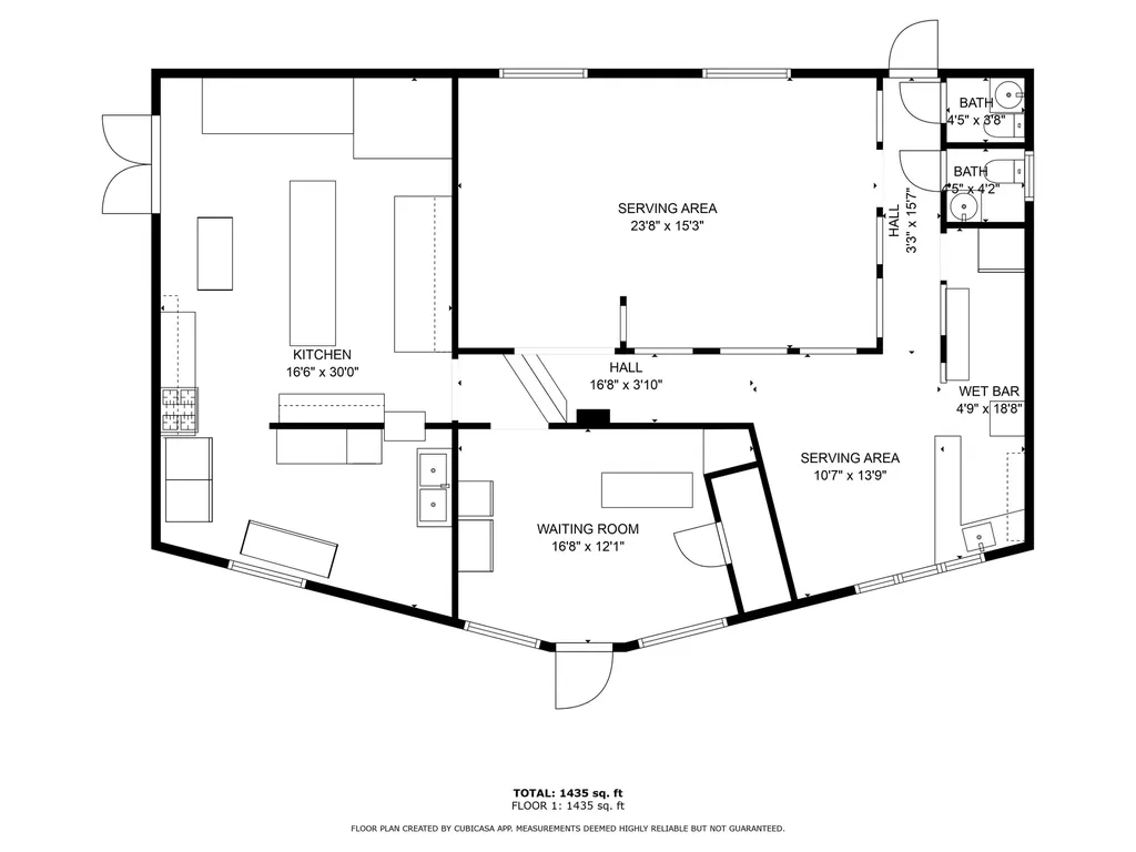
Exceptional commercial property on US Route 5 South in Fairlee, offering outstanding visibility and easy access-just one minute from I-91. With an average of 3,537 vehicles per day (2022 VTrans report), this high-traffic location is ideal for capturing both local and visitor attention. Situated less than 2 miles from Lake Morey and under 6 miles from Lake Fairlee, the property lies in the heart of a vibrant four-season recreational area. Surrounded by renowned summer camps (Camp Billings, Aloha Camps, Lanakila), and close to hiking, boating, and swimming destinations, it benefits from a steady flow of seasonal and year-round activity. Currently operating as a well-established dine-in or take out pizza shop, the building offers flexible potential for conversion to retail, office, wellness, or event space. Features include 10+ paved parking spaces, dual entrances for easy lot access, a level, low-maintenance parcel, mini-splits for cooling, two half baths, and a fully equipped kitchen complete with walk-in cooler, low boy refrigerators, ovens, fryolators, hood vent, mixers and more. Fully furnished and equipped to be a restaurant or use the equipment to liquidate and get started on building your dream! This is a rare opportunity to invest in a highly adaptable property with a strong customer base and endless potential in one of Vermont's most scenic and active communities.

Property Details of 456 Us Route 5 S

Map Location

Driving Directions

Broker Reciprocity 

Copyright 2025 PrimeMLS, Inc. All rights reserved. This information is deemed reliable, but not guaranteed. The data relating to real estate displayed on this display comes in part from the IDX Program of PrimeMLS. The information being provided is for consumers’ personal, non-commercial use and may not be used for any purpose other than to identify prospective properties consumers may be interested in purchasing. Data last updated November 16, 2025 8:09 AM EST

 

Hi there! How can we help you?

Contact us using the form below or give us a call.

Send Us A Message:

I agree to receive marketing and customer service calls and text messages from Martha Diebold Real Estate. To opt out, you can reply 'stop' at any time or click the unsubscribe link in the emails. Consent is not a condition of purchase. Msg/data rates may apply. Msg frequency varies. Privacy Policy.

Do not fill in this field:

This site is protected by reCAPTCHA and the Google Privacy Policy and Terms of Service apply.

Hi there! How can we help you?

Contact us using the form below or give us a call.

Send Us A Message:

Do not fill in this field:

This site is protected by reCAPTCHA and the Google Privacy Policy and Terms of Service apply.

Hi there! How can we help you?

Contact us using the form below or give us a call.

Send Us A Message:

Do not fill in this field:

This site is protected by reCAPTCHA and the Google Privacy Policy and Terms of Service apply.

Do not fill in this field:

This site is protected by reCAPTCHA and the Google Privacy Policy and Terms of Service apply.

Do not fill in this field:

This site is protected by reCAPTCHA and the Google Privacy Policy and Terms of Service apply.

Do not fill in this field:

This site is protected by reCAPTCHA and the Google Privacy Policy and Terms of Service apply.

$

Do not fill in this field:

This site is protected by reCAPTCHA and the Google Privacy Policy and Terms of Service apply.